
BS波動篩煤機產品特點:
波動篩煤機又稱波動篩,是利用機械方法,通過多排并列在轉子上的特制的桃形篩片構成的多變篩孔組成其篩面,各篩軸以同速、同向做圓周運動,使其篩面上的煤料借助桃形篩片交錯回轉,并以波動形式產生“后浪推前浪”的向前運動,從而達到篩分目的。
波動篩煤機具有體積小、篩分效率高、出力大、且能自動清理篩面,不堵篩、適應性廣、篩機無振動、無粉塵、噪聲小等特點。
波動篩煤機具有旁路裝置,可實現自動控制。
BS波動篩煤機型號說明:
BS—口
| |_ _出力(t/h)
|_ _ _ _波動篩
波動篩煤機圖片:


波動篩煤機用途:
BS系列波動篩煤機適用于未經篩選的各種不同規格的顆粒物料的篩分,以滿足系統的需要。本產品是火力發電廠輸煤系統的重要設備之一,在冶金、化工、建材、煤炭等系統也廣為應用。
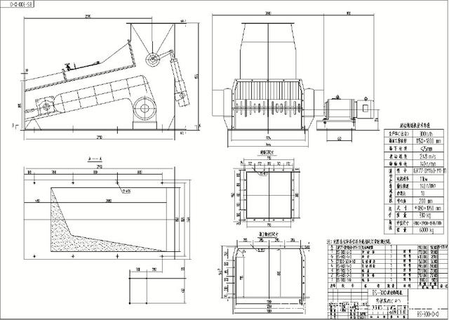
波動篩煤機結構圖:

波動篩煤機技術參數:
型 號 BS-100 BS-200 BS-300 BS-500 BS-700 BS-1000 BS-1400
出 力
(t/h) 100 200 300 500 700 1000 1400
軸 數 6 7 7 8 9 11 11
篩孔尺寸
(mm) 40x 100 40x130 40x130 40x130 40x130 40x130 40x130
篩分效率
(%) 90 90 90 90 90 90 90
篩軸轉速
(r/min) 140 140 140 140 140 140 140
電機功率
(Kw) 3.0 5.5 7.5 11 11 15 22